リンテック工業ロゴ
  • Home
  • 会社概要
  • 業務内容
    製品ラインアップ 資料ダウンロード 無料お見積もり
  • お問合わせ
サイクルラック(前輪差し込み式ラック)ロゴタイプ
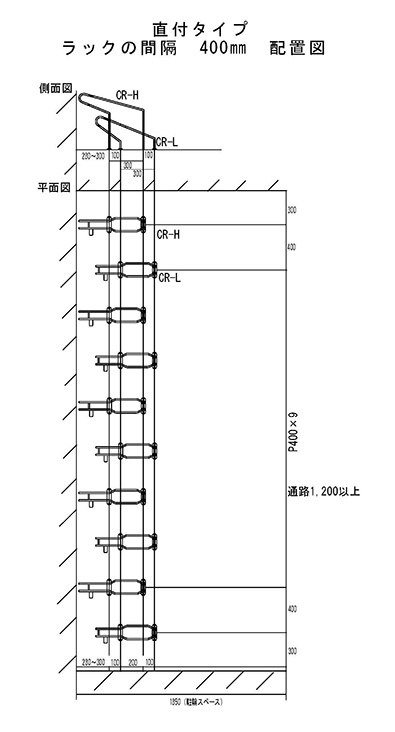
直付タイプ

レイアウト例2

  • PDFファイル
製品ラインアップ 直付けワイドタイプ 傾斜レール付 直付けタイプ マルチチャンネル
ベースフレーム式
ゆとりタイプ 家庭用(2〜3台)タイプ 資料ダウンロード
サイクルラック(前輪差し込み式ラック)直付タイプ配置図画像
  • リンテック工業株式会社 copyright © RINTEC KOGYO CORPORATION All Rights Reserved.
  • プライバシーポリシー
  • サイトマップ